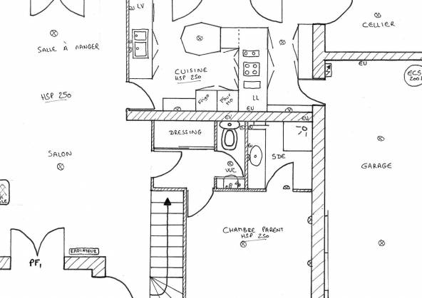
Projet dans lequel j'ai un relevé de l'existant puis une projection 3D des envies client.
Pomponne (77)
Décorateur 77220, Gretz-Armainvilliers (77)
Orléans (45)
Décorateur 45100 (45), Orléans (45)
Bois-Colombes (92)
Architecte d'intérieur 49740, La Romagne (49)
Sèvres (92)
Décorateur 92340, Bourg-la-Reine (92)
Vos données personnelles : Vous disposez d’un droit d’accès, de modification, de rectification et de suppression des données qui vous concernent (art. 34 de la loi informatique et libertés). Nous ne partageons pas, ne louons pas et ne vendons pas la liste de nos abonnés.