Projection

Habitat. Aménagement & Décoration
Descriptif du projet

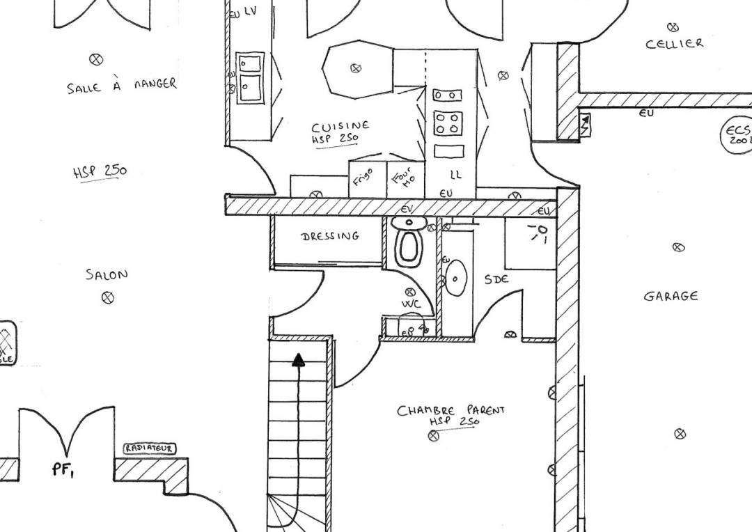
Projet dans lequel j'ai un relevé de l'existant puis une projection 3D des envies client.

Kevin DE VLIEGER
La Maison Des Architectes
CONTACTER L’ARCHITECTE