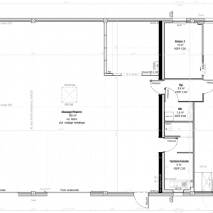
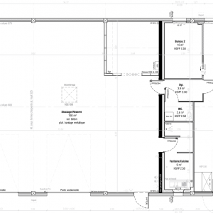
Réalisation d'un permis de cellules commerciales.
Paris
Autres Concepteurs 53000, Laval (53)
Changé
Laval
Paris (75)
Architecte d'intérieur 75010, Paris (75)
Architecte d'intérieur 75020, Paris (75)
Architecte d'intérieur 13007, Marseille (13)
Hem (59)
Vos données personnelles : Vous disposez d’un droit d’accès, de modification, de rectification et de suppression des données qui vous concernent (art. 34 de la loi informatique et libertés). Nous ne partageons pas, ne louons pas et ne vendons pas la liste de nos abonnés.