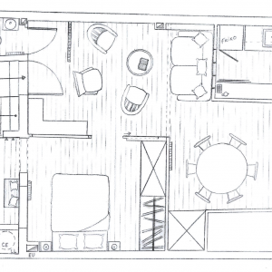
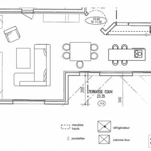
Le contexte: Les clients ont dû changer de logement puisque la famille étant passée de 3 à 4 il fallait aussi passer d'un T3 à un T4. Ils ont donc acheté un nouvel appartement mais leur budget ne leur permettait pas d'acquérir un bien avec le grand espace de vie ouvert qu'ils souhaitaient. Les besoins: Ils m'ont contacté suite à cet investissement afin de leur donner des solutions d'aménagement pour obtenir la grande pièce de vie avec cuisine ouverte, salle-à-manger et salon dont ils rêvaient, pour optimiser la salle-de-bain, pour ajouter des rangements et repenser la circulation entre l'entrée, le séjour et la cuisine. Leur principale difficulté était d'imaginer la possibilités pour un nouvel espace jour. Ma solution: Je leur ai donc créer 3 propositions d'aménagement afin qu'ils puissent se rendre compte du potentiel de leur bien. L'ouverture du mur entre la cuisine et le séjour m'a permis de condamner une des portes d'accès allant de l'entrée au salon ou à la cuisine. Cela a fait récupérer de l'espace pour créer un grand placard dressing dans l'entrée. La cuisine a pu être agrandi grâce à des agencements astucieux et ergonomiques. Dans la salle-de-bain, la baignoire a laissé place à une grande douche à l'italienne selon les souhaits des clients et le lave-linge a pu être intégré à cet espace.