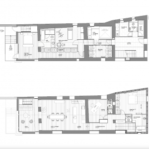
RÉNOVATION INTÉRIEURE D'UNE MAISON DE VILLE Réorganiser l'agencement afin de moderniser et fluidifier l'espace Un jeune couple grenoblois a sollicité l’atelier afin de rénover l’intérieur de leur nouvelle maison des années 2000 située dans le quartier des Eaux-Claires. Cette maison mitoyenne intégrée dans un tissu urbain classique composé d’immeubles et d’habitat de différentes hauteurs possède une parcelle étroite, en longueur et traversante reliée à deux rues de part et d’autre. La commande des clients s’est portée sur le réaménagement du rez-de-chaussée ainsi que la salle de bain à l’étage. Le reste des travaux – étage et combles – interviendra dans une seconde phase. Leur envie principale a été de créer un espace chaleureux, fonctionnel, avec une gestion intelligente des flux afin de se sentir bien chez soi. L’idée de faire appel à un architecte correspond de leur part à une attente esthétique avec une volonté d’apporter une touche artistique et originale tout en ayant un effet épuré avec une sensation d’espace sans surcharger l’ensemble. Le style souhaité est celui se rapprochant de l’esprit scandinave avec des tons clairs et naturels faisant appel à des matériaux tels que le bois, le carrelage, les carreaux ciment et des matières sensorielles et lumineuses. Après divers échanges et options, une version de projet a été affinée afin de répondre au mieux aux goûts et aux usages des clients. Les entreprises prennent le relai afin de budgétiser précisément les éléments clés de l’esquisse.