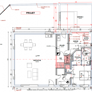
Extension d'une maison individuelle pour création d'une chambre parentale, d'une Cuisine avec Hall d'entrée, extension du garage, piscine et aménagement extérieur.
✨ Un projet d’extension qui change tout ! ✨
Nous accompagnons nos clients dans une belle transformation de leur maison :
🏡 Création d’une suite parentale moderne et lumineuse
🍴 Aménagement d’une nouvelle cuisine conviviale
🚪 Réalisation d’un hall d’entrée accueillant
🔧 Transformation de l’actuel garage en cellier pratique avec salle d’eau
🚗 Construction d’un nouveau garage adapté aux besoins
Et parce que la maison ne s’arrête pas aux murs :
💦 Une piscine viendra sublimer le jardin
🌿 Un réaménagement extérieur complet offrira un cadre de vie agréable et harmonieux
Un projet pensé pour allier confort, fonctionnalité et plaisir de vivre dedans… comme dehors !
👉 Vous aussi, imaginez la maison qui vous ressemble : contactez-nous pour étudier vos envies !