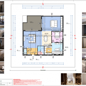
Découvrez la rénovation d'une villa provençale au bord de mer aux Issambres, réalisée par SANAGI en collaboration avec SQUARENO. 🏡✨ Grâce à l'utilisation d'un scanner BLK 360 de Leica, une maquette BIM précise a été créée, permettant une planification précise de la rénovation. Les plans d'aménagement, de plomberie et d'électricité ont été minutieusement conçus pour optimiser l'espace et répondre aux besoins des propriétaires. 💡🛠️ Des images photoréalistes créées avec Twinmotion donnent vie à ce projet. Plongez dans l'univers de cette transformation architecturale. 📸🌟