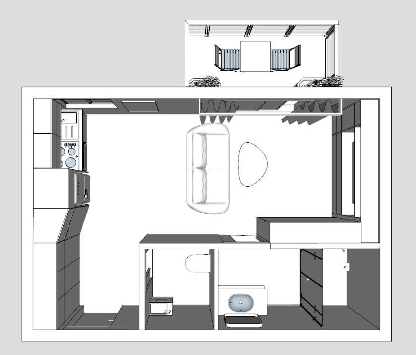
Agencement d'un studio de 20m²

Habitat. Rénovation
Descriptif du projet

Réagencement et aménagement d'un studio de 20m². Mise en place d'une table et d'un lit escamotables.

Benjamin BENOIT
La Maison Des Architectes
CONTACTER L’ARCHITECTE