Extension d'une maison individuelle

Habitat. Extension
Descriptif du projet

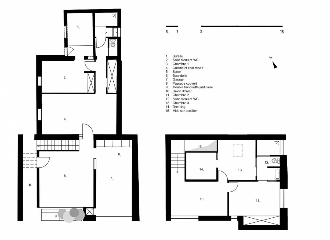
Transformation d'une maison des années 50 et création d'un nouveau volume en extension. 

Aurélie SELLIN
La Maison Des Architectes
CONTACTER L’ARCHITECTE