Conception - Appartement de luxe à Neuilly Sur Seine

Habitat. Rénovation
Descriptif du projet

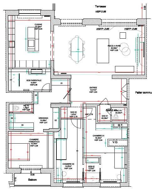
Très bel appartement imaginé initialement par un architecte, la volonté du client était d'ajouter une chambre enfant. Cette contrainte nous à permis de repenser entièrement la distrubution de ce vaste appartement. Nous avons réussi à obtenir une pièce à vivre avec cuisine ouverte sur séjour de plus de 55m² et une suite parentale avec dressing et SDB de plus de 38m². Les chambres enfants d'environ 15m² chacunes deviennent mitoyennes par la SDB et une grande baie atelier permettant aux enfants de se réunir pour jouer ensemble et agrandir encore plus l'espace. L'ensemble du projet a été pensé avec des matières et des finitions haut de gammes pour un design unique et sur mesure.

Marie-Laure Tesi
La Maison Des Architectes
CONTACTER L’ARCHITECTE