Une cuisine avec ilot centrale entre béton et nature

Habitat. Aménagement & Décoration
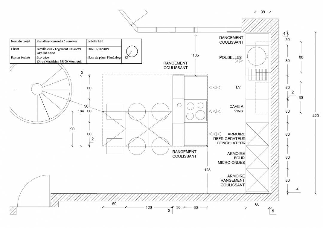
Descriptif du projet

PROJET DE RÉNOVATION D’UNE CUISINE À IVRY-SUR-SEINE PROFIL CLIENT Les propriétaires ont la quartaine et viennent d’acheter cet appartement en duplex pour y installer leur famille recomposée, constituée de deux adolescents en garde alternée et une petite fille de 6 ans. BESOINS ET ATTENTES Les couple souhaite rénover cet duplex et, dans l’espace de vie du premier niveau, créer une entrée avec cuisine ouverte sur le salon et un îlot central ainsi qu’un espace dinatoire pour 4 convives, évolutif à 6 convives pour les semaines où les adolescents sont présents. Ils souhaitent une cuisine fonctionnelle et esthétique, à la fois intemporelle et zen, en harmonie avec l’ambiance d’inspiration japonisante du salon, sobre et épuré.

le mot de l’architecte

POINTS DE DÉPART ET PARTI PRIS CRÉATIF

Les Étoiles de Renaudie

Élément emblématique du projet de rénovation du centre-ville d’Ivry entamé dans les années 60, les bâtiments en étoiles de Jean Renaudie constituent un ensemble architectural de renommée internationale.

Renaudie continuera son travail avec la cité des Etoiles à Givors dans le Rhône, construite entre 1974 et 1981 et labellisée «Patrimoine du XXe siècle» en 2003. Cet ensemble de logements s’implante soigneusement sur un site naturel exceptionnel, la colline Saint-Gérald et se caractérise par une forme architecturale et urbaine unique. Celle-ci traduit les préoccupations de Jean Renaudie sur le logement et l’urbanisme, pour lesquels il cherche à développer une alternative aux tours et aux barres.

Cet immeuble a été le point de départ pour créer une ambiance entre beton et nature avec l'utilisation de matériaux naturels (zelliges en credence, parquet en chêne), l'ajout des plantes vertes au faux plafond, le choix des peintures naturelles. Le challenge de la table modulable a été relevé avec la création d'un table sur mesure dans la prolongation de l'ilot central avec deux table d'appoint qui peuvent servir des consoles d'entrée et se clipser à la table principales pour recevoir plus de convives. Nous avons choisi d'utiliser le baubuche et on a joué avec les formes géometriques pour rappeler l'étoile de Renaudie en créant grâce au vernis 3 tentes de bois différentes.

Je m'adapte à vos besoins et je cherche des solutions astucieuces qui rentrent dans votre budget, alors n'hésitez pas à me contacter pour discuter ensemble des vos projets ! 

Paola Puglisi
La Maison Des Architectes
CONTACTER L’ARCHITECTE