Projet LECLERC

Habitat. Rénovation
Descriptif du projet

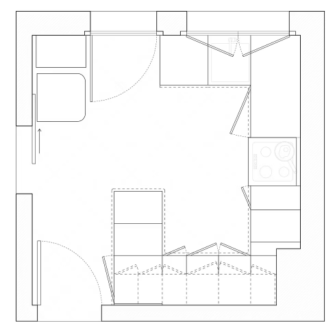
Rénovation d'une cuisine

le mot de l’architecte

Rénovation d'une cuisine visant à améliorer l'organisation et la circulation dans un espace traversant.​

La présence de trois portes dans la pièce imposait une réflexion particulière afin de simplifier les déplacements et de rendre l'espace plus lisible.

Dans une volonté de préserver le caractère du lieu, les sols d'origine ont été conservés, apportant une touche d'authenticité et de continuité avec l'existant. 

​

Lydie Tassot
La Maison Des Architectes
CONTACTER L’ARCHITECTE