Transformation d'un T3 à Boulogne Billancourt en loft esprit campagne

Habitat. Rénovation
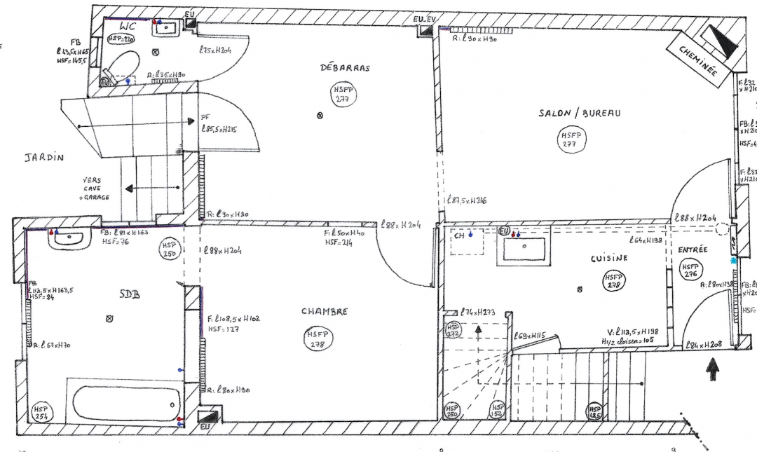
Descriptif du projet

Le contexte: Les clients ont récupéré cet appartement de 60m2 en rez-de-jardin après le départ de la locataire présente depuis presque 40 ans. C’était un T3 au rez-de-chaussée d’une maison de 2 niveaux située à Boulogne-Billancourt et donnant sur un joli jardin privatif.   Les besoins: Les souhaits des clients étaient de transformer cet appartement initialement T3 en T2 dans un esprit loft à la campagne. Ils rêvaient d'ouvrir l'espace pour obtenir un grand espace à vivre baigné de lumière avec une cuisine ouverte.   Ma solution: J'ai entièrement repensé l’espace en repartant d’une page quasiment blanche afin de créer un intérieur ouvert avec vue sur le jardin. Presque toutes les cloisons ont été démolies, l’ancienne cheminée a été supprimée et la cuisine déplacée. J'ai fait entrer un maximum de lumière dans la chambre en insérant un imposte vitré sur toute la longueur du mur de séparation avec le salon. Un claustra a été placé devant l’entrée des toilettes pour cacher visuellement cet accès depuis le séjour. La cuisine ouverte a été partiellemnt cloisonnée avec une verrière bois pour laisser circuler la lumière naturelle traversante. J'ai aussi créé une vraie entrée avec une assise servant aussi de rangement pour les chaussures ainsi qu’un dressing, indispensable pour déposer son manteau lorsque l’on rentre chez soi. En abattant une partie de mur porteur, il a fallu placer un poteau de soutient dans la salle-à-manger. Pour palier à cet élément disgracieux, nje l'ai transformé et habillé de bois pour en faire un atout charme à l’esprit campagne. J’ai fait 3 propositions d’aménagement aux clients et suite à un mix des différentes propositions, nous sommes arrivés à une solution idéale représentée sur le dernier plan ci-dessous.

Marie-Sybille Mahaux
La Maison Des Architectes
CONTACTER L’ARCHITECTE