L'appartement du dernier étage

Habitat. Aménagement & Décoration
Descriptif du projet

BESOINS Création d’une chambre supplémentaire dans l’optique d’accueillir un 2e enfant et réagencement d’une salle d’eau incluant un coin buanderie MISSIONS Etude de potentiel

le mot de l’architecte

Ce couple a fait appel à moi pour adapter leur appartement à l’arrivée de leur deuxième enfant. 

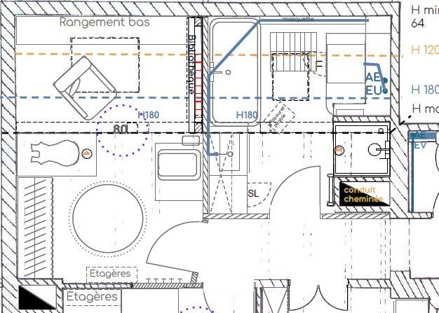
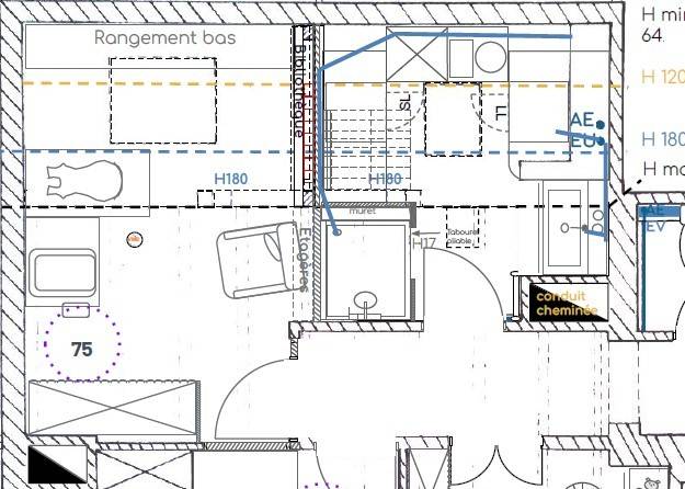
Le projet consistait à créer une chambre supplémentaire en transformant le dressing actuel, tout en cloisonnant l’unique salle d’eau de l’appartement, aujourd’hui ouverte sur cet espace dressing.

Je leur ai proposés trois solutions d’aménagement, optimisant les rangements et l’agencement sous combles. Je leur ai expliqué les avantages et les points d’attention de chaque proposition, leur permettant ainsi de choisir l’option qui leur convient le mieux.

Désormais prêts à entamer les travaux, ils vont accueillir leur nouveau-né dans un cadre chaleureux et fonctionnel, adapté à leur nouvelle vie à quatre.

Avant :

  • Un appartement avec seulement deux chambres

  • Une salle d’eau ouverte sur une pièce servant de dressing

  • Un coin buanderie, situé sous la mansarde, inconfortable au quotidien

Après :

  • Un appartement avec trois chambres : 1 chambre parentale et une chambre pour chaque enfant

  • Une salle d’eau cloisonnée et confortable au quotidien

  • Un coin buanderie fonctionnel incluant un lave-linge et un sèche-linge et disposant de nombreux rangements, inclus dans la salle d’eau

Camille Truttmann
La Maison Des Architectes
CONTACTER L’ARCHITECTE