APS et PC Maison neuve

Habitat. Aménagement & Décoration
Descriptif du projet

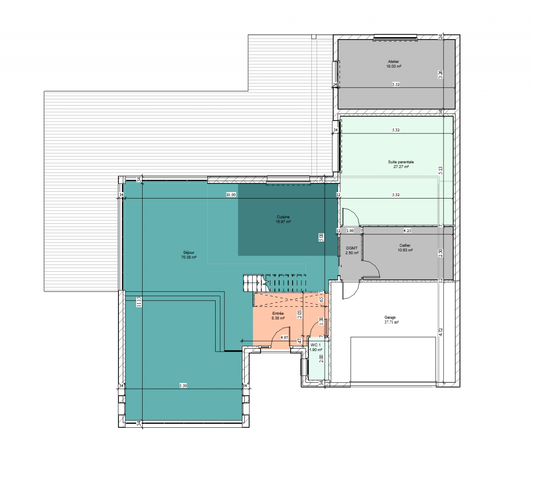
Étude d'avant projet et permis de construire 🏡🚧 1- Rdv client pour étude du terrain et attentes des clients 2- Lecture PLU (important pour vérifier la faisabilité du projet en fonction des règles d'urbanisme) 3- Premiers visuels en projection réaliste et plans détaillés avec distribution des pièces 4- Validation de l'APS et montage du permis de construire avec CERFA 5- Dépot du permis en ligne via le GNAU  6- Acceptation du permis de construire

Jordan Petit
La Maison Des Architectes
CONTACTER L’ARCHITECTE