Maison individuelle

Habitat. Construction
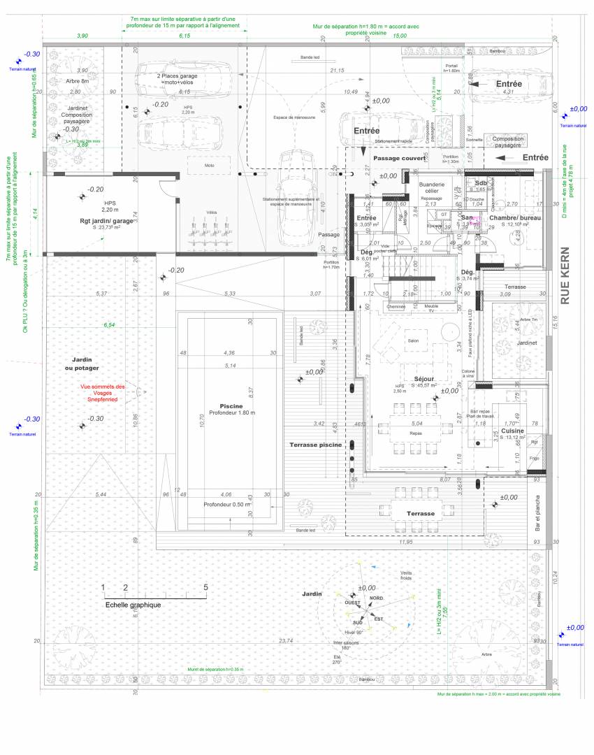
Descriptif du projet

Etude pour une maison individuelle.

le mot de l’architecte

L’architecture, la spatialité et l’intégration au site constituent les fondements de la réflexion menée autour de ce projet.
La conception privilégie des espaces largement ouverts sur l’extérieur, mettant en valeur les perspectives et les variations de hauteur du paysage environnant, le site étant situé au cœur de la vallée.
Cette maison se construit autour d’un équilibre subtil entre intériorité, ouverture et dialogue avec le paysage, conférant à l’ensemble un caractère unique et une qualité de vie remarquable.

Mathieu Lang
La Maison Des Architectes
CONTACTER L’ARCHITECTE