Demande préalable de travaux

Habitat. Extension
Descriptif du projet

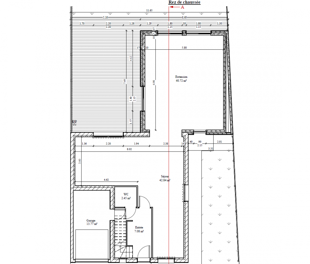
🚧 Réalisation d’une étude projet avant projet et dépôt de permis de construire pour une extension en container - Relevé de l’existant ✏️ - Projection du projet 2D/3D 🖥 - Rendus réaliste ✅️ - Validation de l’ensemble par le client ✅️ Une etude de projet et très importante afin de valider le visuel de l’ensemble. - Montage des pièces graphiques qui compose le permis  - Rédaction du CERFA - Dépot en ligne via le GNAU Suivis du dossier jusqu'a acceptation

Jordan Petit
La Maison Des Architectes
CONTACTER L’ARCHITECTE