Aménagement et décoration d'un loft

Habitat. Aménagement & Décoration
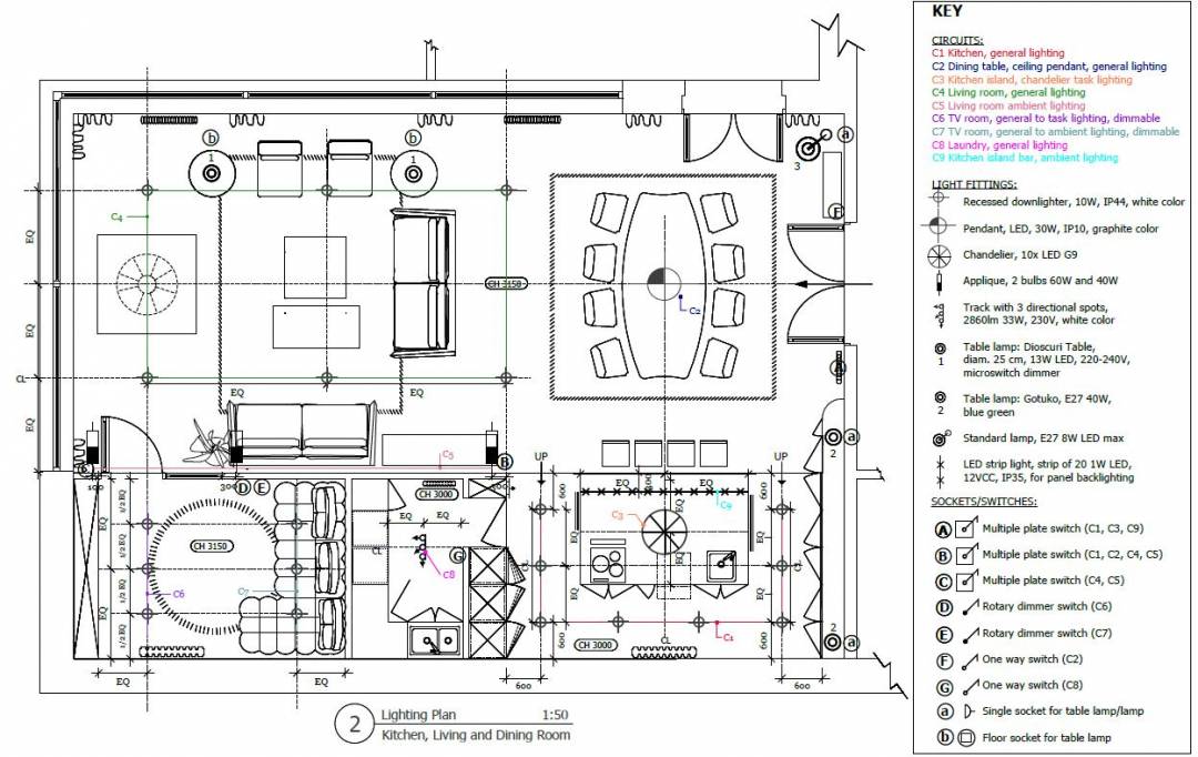
Descriptif du projet

Aménagement et décoration d'un plateau vide d'une centaine de mètres carrés, incluant une cuisine, un salon, un espace repas. 

le mot de l’architecte

Le cahier des charges devait tenir compte du fait que les clients reçoivent souvent de nombreux invités. J'ai également pensé les espaces afin qu'ils ne soient pas trop dispersifs et qu'ils puissent également offrir des volumes plus "cocooning" lorsque le couple est seul. Les espaces sont ainsi bien définis de par leur fonction, sans pour autant être cloisonnés.

Guenaelle Hardy
La Maison Des Architectes
CONTACTER L’ARCHITECTE