Aménagement de bureaux

Locaux professionnels. Bureaux
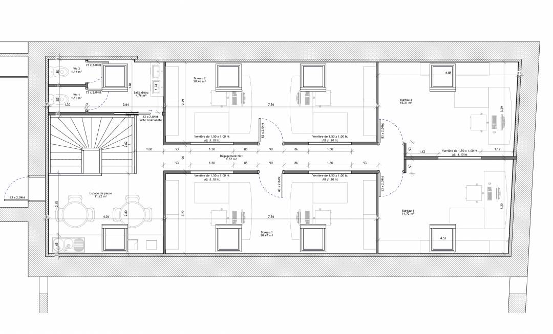
Descriptif du projet

Sur ce projet le client souhaitait rénover et aménager des bâtiments abritant des bureaux et en créer de nouveau. Le bâtiment de gauche qui en comprend déjà, à subis des travaux extérieurs avec la rénovation des façades, de la toiture et le changement des menuiseries, ainsi qu’une rénovation intérieure des anciens bureaux.   Afin d’en créer de nouveaux, le bâtiment de droite va subir des travaux intérieurs afin de les accueillir à l’étage. La première partie des travaux à été la rénovation de la toiture ainsi que la pose de fenêtres de toit.   Ma mission était de concevoir le projet, réaliser la déclaration préalable de travaux en vue du dépôt en mairie et réaliser les plans d’exécutions pour les différents artisans.

Mathieu FRONTEDDU
La Maison Des Architectes
CONTACTER L’ARCHITECTE