Pièce de vie - Neuilly-Sur-Seine

Habitat. Rénovation
Descriptif du projet

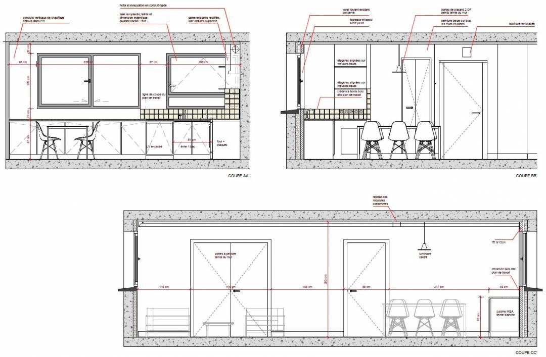
Rénovation partielle d'un appartement de 1950 avec la reprise de l'entrée, séjour, salle à manger et cuisine d'une surface de 45m²  - Suppression d'une chambre et remplacement de l'ancienne cuisine, suppression d'une cheminée et du vide ordures - Isolation thermique intérieure et changement de menuiserie aluminium brut, ajout de volets roulants électriques - Reprise de l'électricité et des appareillages

Raphaël Fournier
La Maison Des Architectes
CONTACTER L’ARCHITECTE