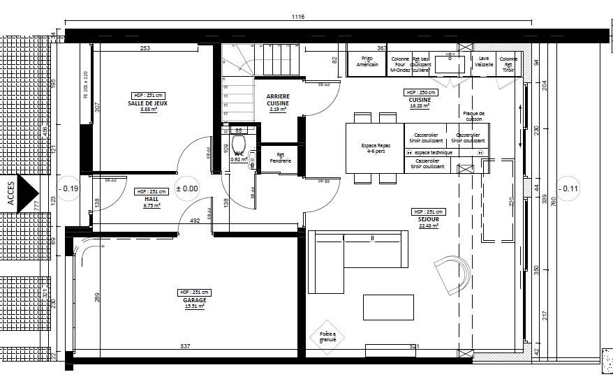
Aménagement d'une cuisine

Habitat. Extension
Descriptif du projet

Extension en RDC pour la création d'une cuisine

Anne-Sophie Brasme
La Maison Des Architectes
CONTACTER L’ARCHITECTE