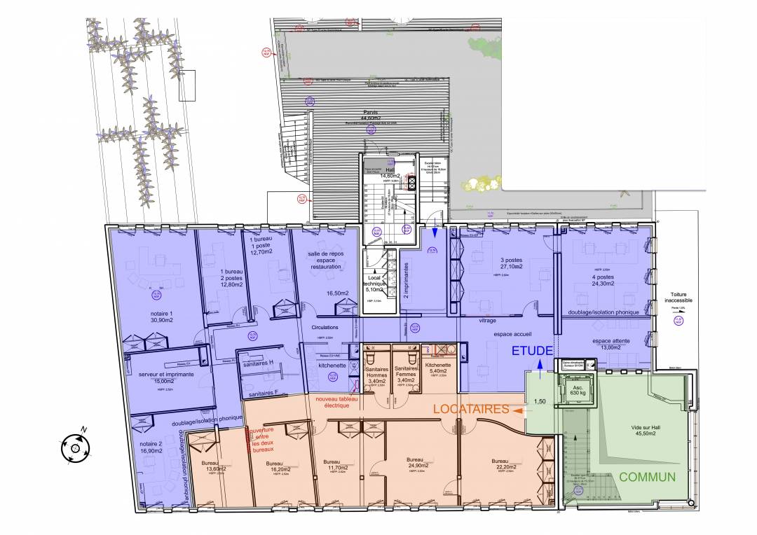
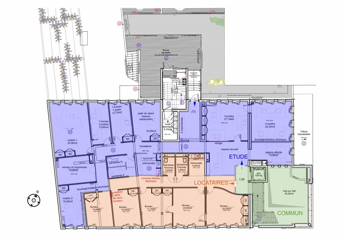
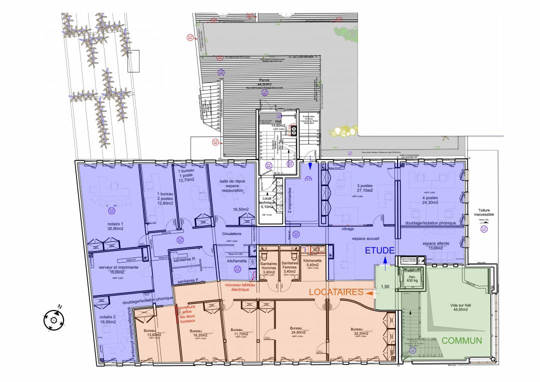
Office notariale

Locaux professionnels. Bureaux
Descriptif du projet

Aménagement d'un étage pour créer une office notariale et des bureaux à la location. 

Nadege MAION
La Maison Des Architectes
CONTACTER L’ARCHITECTE