Immeuble Vernayaz

Habitat. Construction
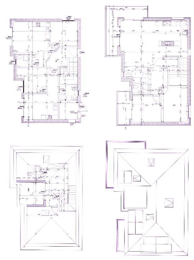
Descriptif du projet

Pour le projet résidentiel de Vernayaz, j'ai appliqué cette approche pour concevoir trois appartements individuels au sein d'un bâtiment de 240 m², situé dans un cadre unique, bordé d'un cimetière d'un côté et offrant des vues sur la montagne et la jungle de l'autre. Le défi de conception était d'optimiser l'expérience de vie des résidents tout en respectant les réglementations municipales imposant une densité de population accrue. Mon objectif était de créer une disposition qui maximise les vues naturelles pour chaque unité, garantissant que les appartements plus grands et plus petits offrent tous une connexion avec l'environnement extérieur. Une attention particulière a été accordée à la préservation de l'intimité dans les appartements plus petits, les rendant à la fois intimes et confortables tout en assurant l'accès aux meilleures vues. Conformément à l'approche centrée sur l'humain d'AnthroForma Studio, la conception mettait l'accent sur la fonctionnalité et la qualité de vie. L'appartement plus grand comprenait un espace studio flexible, répondant à des besoins de mode de vie divers, tandis que les unités plus petites étaient conçues pour être compactes mais entièrement équipées, permettant un équilibre entre intimité, confort et fonctionnalité.

le mot de l’architecte

Le projet a été réalisé avec un budget limité, mais le résultat est un espace soigneusement conçu qui favorise une expérience de vie harmonieuse, où les résidents peuvent profiter des bienfaits d’espaces bien planifiés, répondant à la fois à leur bien-être physique et émotionnel.

Azadeh Djavanrouh
La Maison Des Architectes
CONTACTER L’ARCHITECTE