aménagement t2

Habitat. Aménagement & Décoration
Descriptif du projet

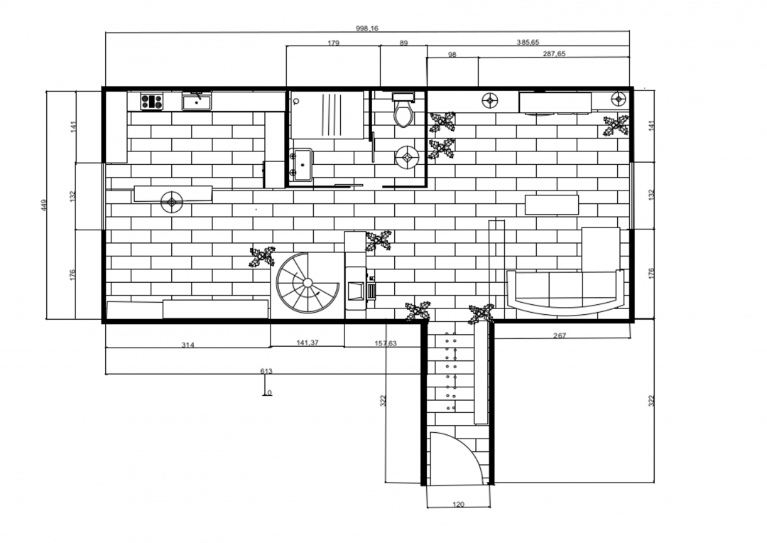
Appartement de 50m2 sur la ville de dammartin en goelle dans le 77. Réaménagement complet de l'entrée du salon de la salle de bain et de la chambre. Une entrée a été créée plus chaleureuse avec des rangements. La salle de bain est refaite intégralement en abattant le mur des wc pour être relier par une porte coulissante à l’intérieur de la future salle de bain. Un meuble côté escalier a été créé afin de permettre plus de rangements. Le salon a été cloisonné par une étagère mais en laissant passer la lumière. Les couleurs principales sont le beige et une touche de vert déclinée en deux teintes. Le client a souhaité un style industriel mélangé au scandinave où nous pouvons retrouver le fauteuil de ce style et certaines couleurs. La chambre a également été repensée pour être plus fonctionnelle avec plus de rangements permettant à la sous pente d’accueillir des commodes. Les couleurs sont neutres mais la tête de lit peinte permet de réchauffer ce blanc.  

le mot de l’architecte

Le projet en deux ambiances : industriel et scandinave fut un plaisir à realiser

Mariane FOLIGNE
La Maison Des Architectes
CONTACTER L’ARCHITECTE