Maison PA

Habitat. Extension
Descriptif du projet

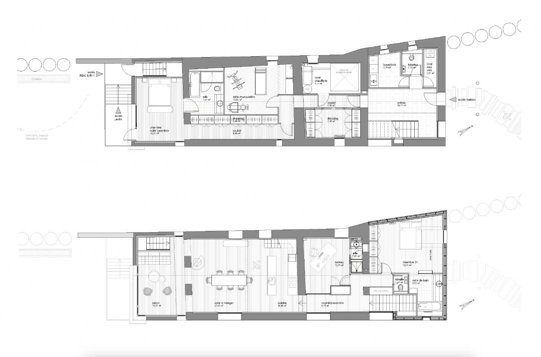
RÉNOVATION D'UNE MAISON & CRÉATION D'UNE EXTENSION Allier le contemporain à l'ancien Le projet consiste en la rénovation d’une partie de la maison existante et en la création d’une extension sur deux niveaux en profitant de l’emprise au sol de la terrasse existante. Les interventions de projet sont également la création d’un garage permettant de stationner trois véhicules et un atelier de stockage, l’aménagement du jardin et la création d’une piscine. La bâtisse et son parc sont situés dans un secteur calme et arboré. Les espèces remarquables d’arbres présentes sur le site et les avoisinants apportent une atmosphère apaisante au lieu. La parcelle en longueur est traitée de manière séquentielle afin de redéfinir chaque espace. La famille souhaite bénéficier d’un espace plus généreux pour leur vie quotidienne et pour recevoir leurs amis, ainsi que de nouveaux espaces tels qu’un dressing d’entrée, une salle de musculation et une suite parentale. L’extension présente un volume minimaliste en continuité avec celui de la bâtisse existante. Une “lame” vitrée établit le lien entre ancien et nouveau tout en respectant les composants des façades existantes. Le parement extérieur en acier corten est présent au niveau des parois murales et de la toiture.  Le choix de menuiseries performantes, d’une isolation qualitative, de BSO et d’un débord fin à l’extérieur au niveau de la menuiserie du séjour assureront un confort thermique autant en période hivernale qu’en période estivale. La ventilation et la climatisation seront proportionnées à la nouvelle échelle du projet et intégrées au volume dans les gaines en conservant les bénéfices du puit canadien. La recherche d’homogénéité du projet tant à l’extérieur qu’à l’intérieur est la clé de voûte de ce projet audacieux et contemporain.

Clémentine HITIER
La Maison Des Architectes
CONTACTER L’ARCHITECTE