Aménagement d'un appartement PMR (personne à mobilité réduite)

Habitat. Aménagement & Décoration
Descriptif du projet

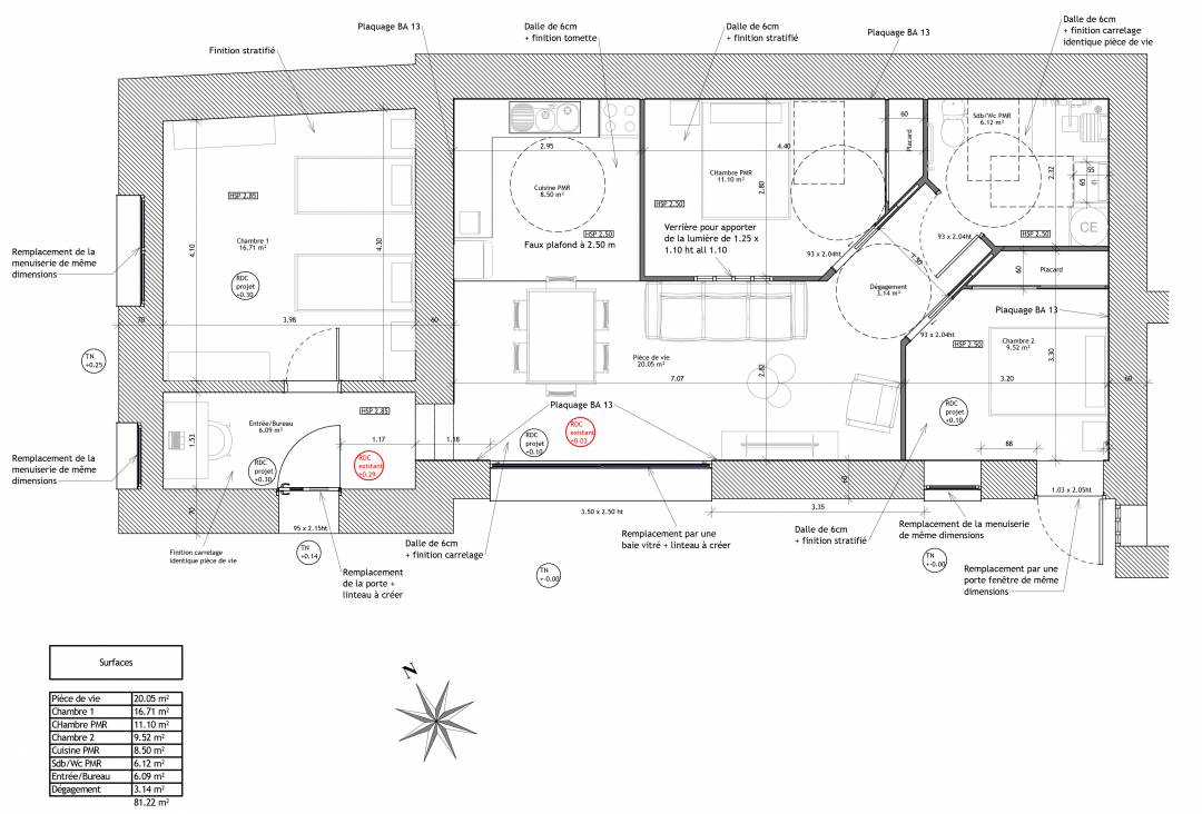
Pour ce projet le client souhaitait aménager une ancienne boulangerie en appartement PMR (personne à mobilité réduite).   Ma mission était de concevoir cet aménagement et réaliser les plans d’exécutions pour les différents artisans.   Ce projet a été réalisé en partenariat avec la maison des travaux de Chalon-sur-Saône.

Mathieu FRONTEDDU
La Maison Des Architectes
CONTACTER L’ARCHITECTE