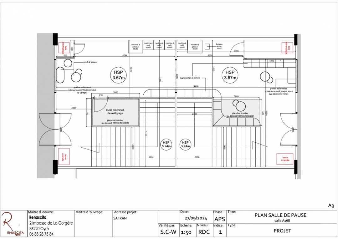
Salle de pause

Locaux professionnels. Bureaux
Descriptif du projet

Plan et images 3D

le mot de l’architecte

Création d'un espace de pause, pour un site industriel. Agrandissement du local existant. 

Création de plancher sur structure bois, afin de permettre d'optimiser l'espace, ainsi que les zones de circulations.

Les murs ont été traités avec des décors imitant le bois, associés à des banquettes 

modulables de tonalité jaune. 

Sandrine Courtney-Wildman
La Maison Des Architectes
CONTACTER L’ARCHITECTE