BEIGERA

Habitat. Aménagement & Décoration
Descriptif du projet

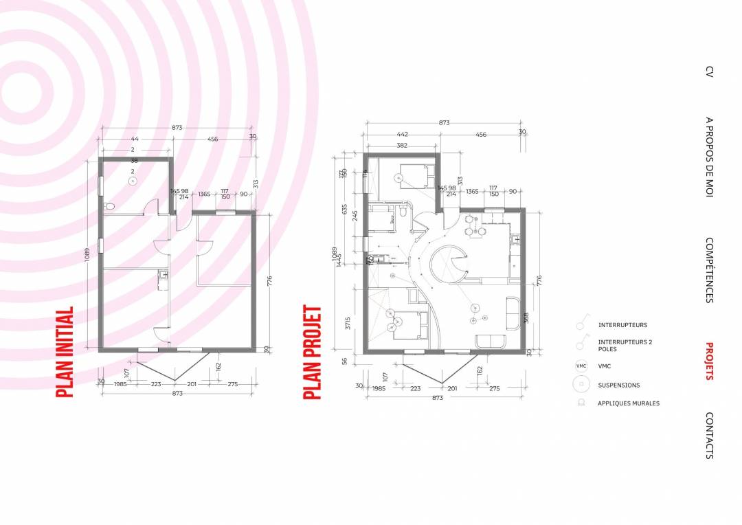
Ce projet se concentrait sur la transformation d’un appartement à l’agencement initialement cloisonné et peu fonctionnel. J’ai choisi de restructurer l’espace pour le rendre plus ouvert et harmonieux, tout en répondant aux besoins de la propriétaire : un lieu de vie élégant tout en permettant d’accueillir sa fille occasionnellement. L’une des décisions majeures a été de créer un îlot central multifonctionnel, qui, en plus de créer du rangement supplémentaire, sert également de point d’ancrage visuel dans l’espace. J’ai conçu une suite parentale pour offrir à la propriétaire une chambre spacieuse, complétée par un dressing qui apporte une touche de luxe.

Léa Brochet
La Maison Des Architectes
CONTACTER L’ARCHITECTE