Rénovation et restructuration d’un appartement haussmannien de 180 m² à Passy

Habitat. Rénovation
Descriptif du projet

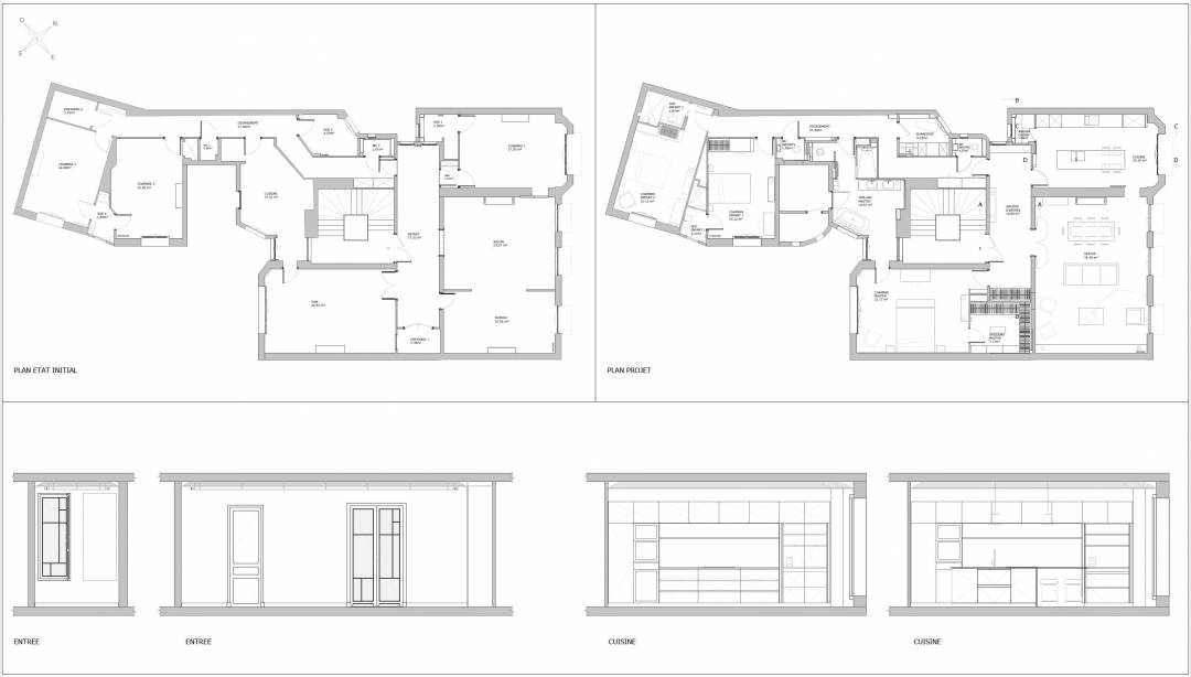
Situé dans le quartier de Passy, cet appartement classique disposait d’un plan mal répartit du fait d’une rénovation peu cohérente datant des années quatre-vingt. Destiné à accueillir une famille avec deux adolescents, une question fondamentale se pose alors : comment habiter un appartement haussmannien de nos jours? Une réflexion en profondeur s’est opérée sur l’organisation spatiale. Les pièces de réception ont été ramenées côté rue et une enfilade a été percée sur la façade noble. Dans cette optique, une cuisine très agréable, articulée autour d’un grand ilot en corian blanc de 3,20 m de long est imaginée comme le centre névralgique de la vie familiale. Les chambres sont disposées au calme, côté cour et chacune des trois suites est construite autour d’un thème différent. Tout au long du projet, un travail de longue haleine a été mené avec des artisans talentueux sur le staff, le parquet, les agencements et le dessin des ferronneries. Des matériaux de qualité ont été choisis afin que l’ensemble soit chic et raffiné.    

le mot de l’architecte

Photographies de Thibault Pousset

Kahina Lebsir
La Maison Des Architectes
CONTACTER L’ARCHITECTE