Rénovation totale d’un appartement des années 70 de 92 m² à Vincennes

Habitat. Rénovation
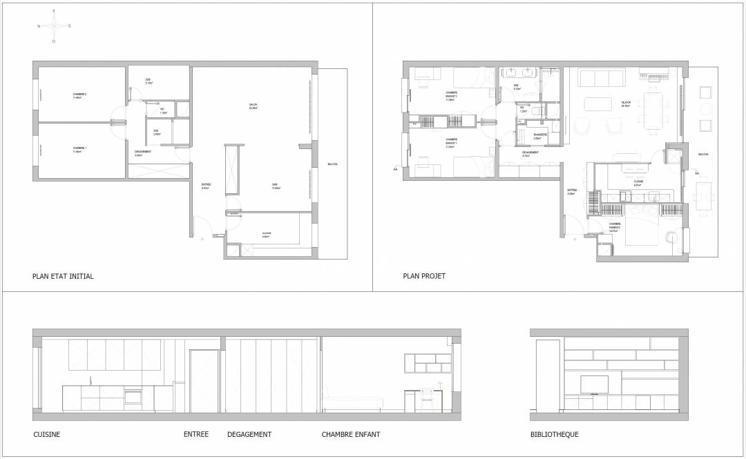
Descriptif du projet

Situé dans un immeuble des année soixante-dix dans le centre de Vincennes, cet appartement n’avait jamais été rénové. De par son étage élevé , il jouissait pourtant d’une vue imprenable sur le château et le bois sans aucun vis à vis. Le peu de murs porteurs a permis une restructuration complète du plateau afin de tirer le meilleur parti des lieux. La lumière, la vue et la fonctionnalité ont guidé le cheminement du projet. Dès l’entrée, on est attiré vers l’extérieur grâce à la verrière en angle de la cuisine qui laisse pénétrer la lumière à travers les grandes baies vitrées. Trois chambres au lieu de deux à l’origine ont été créées pour cette famille de quatre personnes. Avec le nouveau plan, on profite pleinement de la terrasse perchée sur la ville comme une extension et l’idée du bleu est apparue dès le départ comme un clin d’œil au ciel faisant rentrer un bout du « dehors, dedans » Le parti pris d’une architecture aux lignes claires et épurées, intègre également une salle d’eau confortable, une buanderie ainsi que de nombreux rangements optimisés. Le choix des matériaux a été fait dans une le cadre d’une démarche éco-responsable: mosaïque recyclée, terrazzo écologique et bois certifiés durables.      

le mot de l’architecte

Photographies de Thibault Pousset

Kahina Lebsir
La Maison Des Architectes
CONTACTER L’ARCHITECTE