Rénovation totale d’un appartement des années 60 de 124 m² à Boulogne

Habitat. Rénovation
Descriptif du projet

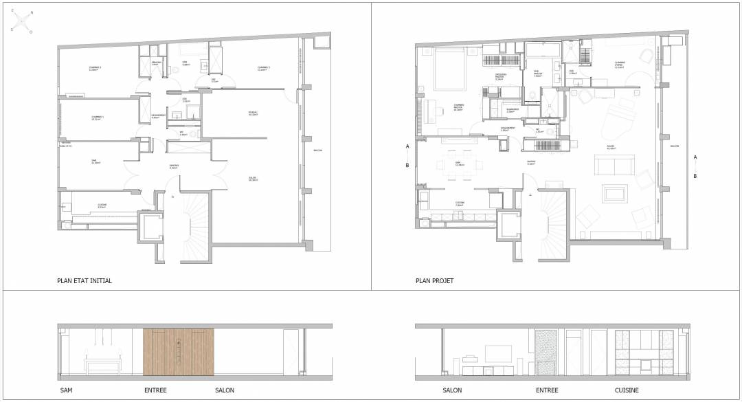
Disposant de plusieurs pièces exiguës à la décoration vieillissante, cet appartement situé au sein d’une grande copropriété des années soixante, avait pourtant des atouts incontestables : En étage élevé, il jouissait de vues dégagées des deux côtés bien que ne communiquant pas. La structure constructive de l’immeuble en poteaux-poutres sans murs porteurs intérieurs permettait une totale liberté du plan. Les objectifs du projet étaient clairs : -Imaginer des pièces de vie généreuses -Réduire les espaces de circulation -Concevoir deux suites indépendantes et confortables L’espace a été ouvert et décloisonné afin de retrouver un traversant exceptionnel et une continuité visuelle vers le ciel et le bois de Boulogne. De nombreux rangements et agencements ont été intégrés et les matériaux parfaitement choisis viennent sublimer discrètement l’ensemble.

le mot de l’architecte

Photographies de Thibault Pousset

Kahina Lebsir
La Maison Des Architectes
CONTACTER L’ARCHITECTE