Extension d'une maison à Chelles

Habitat. Extension
Descriptif du projet

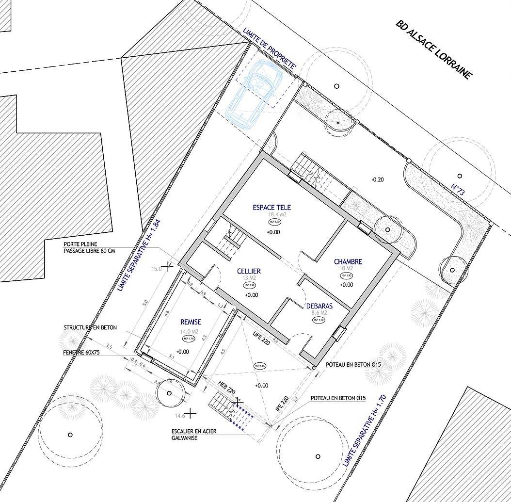
Le projet porte sur l’extension d’une maison située à Chelles. Construite après guerre, la maison présente une architecture typique des maisons de Chelles ; toiture de tuiles à double pentes, façades enduites. En grande majorité pavillonnaire, les constructions sont édifiées légèrement en retrait du domaine public et jouent avec la végétation de leur jardin. L’option prise pour l’extension est de conserver l’identité de la maison tout en assurant une transformation par le biais d’éléments empruntés au langage architectural contemporain. Cela traduit la volonté de venir rechercher la lumière et l’ensoleillement du Sud. L’extension de la maison est prévue sur la façade arrière, un volume au rez de jardin et au premier étage est imaginé dans le prolongement du pignon ouest. Le nouveau volume permet d’étirer la maison vers le jardin et d’offrir un prolongement de l’intérieur vers l’extérieur. Une expression simple a été décidée pour l’ensemble. Á l’étage façade sud, une baie vitrée d’angle, offre à la chambre une belle lumière et une vue sur le jardin. La terrasse avec sa structure légère en acier donne un accès direct de la cuisine au jardin et un nouvel espace de convivialité familiale. La façade Ouest, qui vient en prolongement de la maison existante, n’est pas percée. La maison se trouve en zone inondable et suite à une étude du sol l’extension va être réalisée avec des micro-pieux. La terrasse, en acier avec plancher en lames composites répond à la nécessite d’une structure légère. Les gardes corps, en acier galvanise, sont très discrets et garantissent une visibilité vers le jardin.

Silvia Lippa
La Maison Des Architectes
CONTACTER L’ARCHITECTE