Echoppe Bordeaux

Habitat. Extension
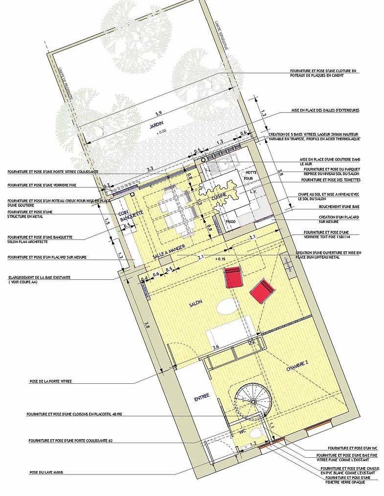
Descriptif du projet

L’échoppe est une maison typique de Bordeaux. C’est une maison basse qui se développe en profondeur, souvent en pierre de taille calcaire avec une toiture à deux pentes couvertes en tuiles. Le projet prévoit la rénovation de la partie orientée vers le jardin. Pour cette extension, nous avons souhaité rénover cette partie dans les règles de l’art. La rénovation respecte l’identité de l’échoppe et associe le charme de l’ancien à une rénovation moderne. La pierre bordelaise est mise en valeur et le profil de la toiture en verre vers le jardin est conservé. Les espaces au RDC sont repensés. Les toilettes sont déplacés pour gagner de l’espace dans la véranda. La partie de la maison, donnant vers le jardin, était mal exploitée et isolée, le salon était très sombre et très froid l’hiver. Une grande ouverture a été créé sur la façade en pierre pour relier le salon à la salle à manger et le connecter visuellement au jardin. Une espace banquette lecture est créé à gauche de la véranda ainsi qu’une cuisine ouverte sur sa droite avec une fenêtre style « atelier » donnant sur le jardin. La toiture de la véranda est totalement remplacée par une verrière double vitrage avec une structure en acier, cela a permis d’ajouter de la lumière zénithale à l’ensemble et d’obtenir une meilleure isolation.

Silvia Lippa
La Maison Des Architectes
CONTACTER L’ARCHITECTE