Projet de rénovation d'une longère en héritage

Habitat. Aménagement & Décoration
Descriptif du projet

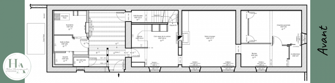
Le projet d'une longère de 90m², avec 2 caves (1 sous la cuisine et l'autre sous la chambre parentale). Il y avait également un étage avec les 3 chambres en enfilade, pour les enfants, ainsi qu'une salle d'eau. Cette bâtisse est l'héritage de la famille qui m'a contacté, afin d'en faire une maison de vacances. Elle souhaitait pouvoir la louer lorsque personne n'y allait et en profiter avec ses membres du foyer. Ils étaient 4, les parents et les 2 enfants. Éventuellement des repas avec la famille plus éloignée sont envisagés. Le projet consistait à : Repenser la cuisine qui était restée dans les années 80 Optimiser l'entrée et résoudre le problème de la multitude de petites marches Ajouter une salle d'eau dans la chambre parentale et la rendre plus fonctionnelle

le mot de l’architecte

Les principales difficultés :

  • Tous les murs sont porteurs par conséquent il n'était pas possible d'y toucher pour agrandir les espaces
  • Toutes les pièces sont en enfilade donc il faut garder un espace de circulation.
  • Les alimentations en eau, électricité, ne pouvaient pas être modifié pour limiter les coûts
  • Les évacuations devaient rester en lieu et place pour limiter les coûts
  • Étude de faisabilité pour installer une nouvelle salle d'eau (création des arrivées et évacuations des eaux)

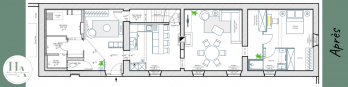
Ma mission est de leur proposer 3 propositions d'aménagement qui réponde au mieux à leur besoin.

Jérôme DULARY
La Maison Des Architectes
CONTACTER L’ARCHITECTE