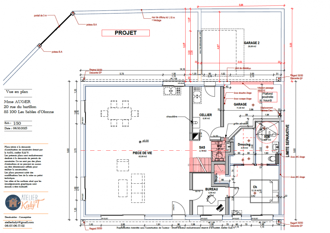
Création Garage + transformation du garage en suite parental

Habitat. Extension
Descriptif du projet

Transformation du garage existant en suite parental et extension pour création d'un nouveau garage.

Lynda CARDOSO
La Maison Des Architectes
CONTACTER L’ARCHITECTE