Optimisation de l'aménagement intérieur : Transformer une villa contemporaine en un espace fonctionnel et accueillant

Habitat. Aménagement & Décoration
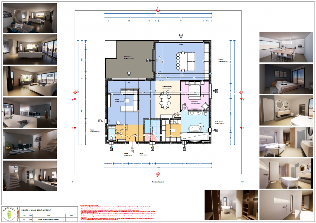
Descriptif du projet

💡 Réinventez l'aménagement d'une villa contemporaine avec l'équipe talentueuse de SANAGI ! Découvrez comment notre équipe de dessinateurs-projeteurs indépendants, en collaboration avec SANAGI (さなぎ), a brillamment relevé le défi d'aménager l'intérieur d'une villa en construction tout en respectant les contraintes du chantier et du permis de construire. 🏗️ Maximisant l'espace disponible, nous avons créé des espaces de vie spacieux et confortables, tout en offrant une circulation fluide entre les différentes zones de la maison. 🌟 Plongez dans notre processus créatif, guidé par la passion de SANAGI pour la nature et l'agencement, et explorez le résultat final : une maison contemporaine d'un étage alliant fonctionnalité, intimité et esthétisme. 🏡✨ Avec SANAGI, redéfinissez votre vision de l'aménagement intérieur contemporain et créez une maison durable et harmonieusement intégrée à son environnement.

Rémi MOULIN
La Maison Des Architectes
CONTACTER L’ARCHITECTE