Création d'une extension

Habitat. Extension
Descriptif du projet

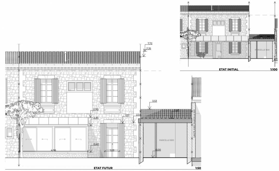
Création d’une extension avec dépot de permis en mairie. Pour cette maison exposée plein sud, la mission principale était d’ajouter de la lumière dans la pièce de vie. Le plan existant permettant peu de marge de manoeuvre, il était essentiel de créer une extension afin d’obtenir un espace séjour confortable, et permettait ainsi de profiter du soleil toute la journée.  Nous avons créé une veranda, entièrement vitrée, avec structure alimunium anthracite pour un effet moderne qui s'integre parfaiment à l'esprit plus tradtionel de la maison

Alix Audon
La Maison Des Architectes
CONTACTER L’ARCHITECTE